Citizen are pleased to offer these shared ownership properties available in Rugby for resale
A resale property is a shared ownership property that the current owner bought new from us, or as a resale. These properties fall under the category of part buy/part rent.
If you are interested in purchasing one of our resale homes currently available in Dudley and the surrounding towns, please complete and return the application form.
Please ensure you state on the application which property you are interested in and return to the sales email address below.
Citizen Application Form – Resale
Email: sales@citizenhousing.org.uk


Before we can arrange viewings for our resale properties, we will need the completed application form. As resale properties are being sold on behalf of the current shared owner, they will conduct the viewings.
Once you have viewed the property, and if you wish to proceed with purchasing, you will need to complete a two-stage financial assessment with our financial assessor, Censeo to confirm your affordability.
Below are the resale properties we currently have available:
6 Gill Crescent, Houlton, Rugby, Warwickshire, CV23 1AP
Two Bedroom Semi Detached House – 40% Share – £110,000 – Opportunity to staircase ownership


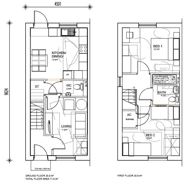
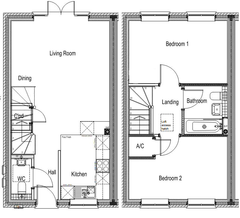
This lovely two-bedroom semi-detached house is now available in Houlton, Rugby through Shared Ownership.
The property comprises of an entrance hallway with the downstairs WC and access to the first floor on the left as you walk in. Open plan living space with a modern kitchen and living room with double door access to the private garden.
Upstairs you’ll find a well-appointed bathroom and two good-sized bedrooms. This property benefits from off-street parking for two vehicles and a private rear garden.
Sale Details
Available for £110,000 for a 40% share based on the marketing figure of £275,000.
Monthly Rent – £413.62
Monthly Service Charge – £18.38
Total monthly charge of £432.00 is payable to Citizen Housing who will act as the landlord for the remaining 60%.
We are also marketing this property on Zoopla – Gill Crescent, Houlton, Rugby – 40% Share CV23, 2 bed semi-detached house for sale, £110,000 – Zoopla
Any interested buyers will need to be eligible for the Help to Buy Shared Ownership scheme and they will need to complete a financial assessment with Censeo before they are approved to purchase.
One of our team will be in touch