Citizen are pleased to offer these brand new 2 and 3 bedroom semi detached and terraced homes for shared ownership purchase at Bamford Park in Upper Lighthorne.
We are pleased to offer these brand new homes, for shared ownership purchase, in the village of Lighthorne located in heart of the Warwickshire countryside. This delightful village has a local shop for your essentials and a pub where you can relax over a drink.
There are several schools close by, Lighthorne Heath Primary School and 5 miles away Kineton High School, both Ofsted rated ‘Good’. Southam College is just 10 miles away and is regarded by Ofsted as ‘Outstanding’
Situated approximately 6 miles from the Royal town of Leamington Spa, and a short distance to Warwick, Stratford upon Avon and further afield Banbury. You will find plenty to see and do, from shopping, dining, enjoying a drink or taking in the local history. There are plenty of recreational facilities to suite all ages in the surrounding areas, including the British Motor Museum, Warwick Castle, The Royal Shakespeare Theatre, race courses in both Warwick and Stratford, leisure centres and cinemas to name but a few. Banbury is easily accessible from Bamford Park, just down the M40 motorway, where you’ll find a retail park with a number of large high street stores.
With the M40 being less than 2 miles away from these new homes, this provides transport links to Oxford, Birmingham, Banbury and London. The nearby A46 takes less than 30 minutes to reach Coventry. Birmingham airport is approximately 45 minutes away by car via the M40/M42.
The train station at Lighthorne Heath has regular connections to London Marylebone. Local buses passing through Lighthorne take you to Leamington, Kineton, Stratford, Fenny Compton, Gaydon and Banbury (No 77 & 77A).

KITCHEN
Fitted kitchen with oven, hob and extractor
Vinyl flooring
HEATING
Gas central heating
BATHROOM
White bathroom suite with shower over bath
Vinyl flooring
HOUSE EXTERIORS
Turf to rear garden
2 off road parking spaces


The Asher is a three bedroom end terrace home comprising on the ground floor, entrance hall, store cupboard/s, cloakroom, lounge, kitchen/dining room; the first floor includes 3 bedrooms, family bathroom and store cupboard/s. The property also has 2 off road parking spaces.
Total Rent £590.01 pcm
READY TO OCCUPY
* All images/photographs are for illustrative purposes only

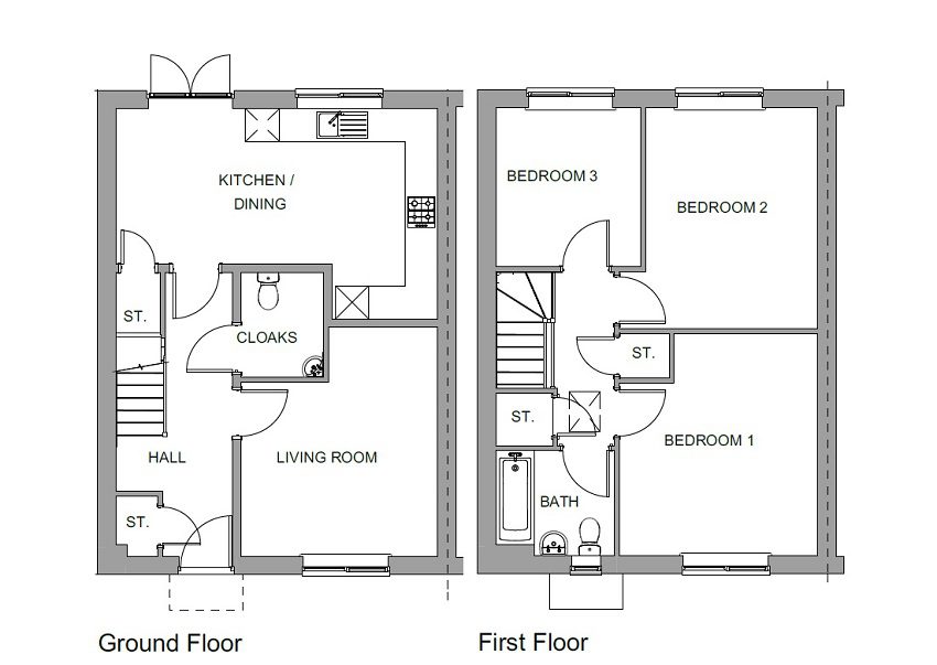
The Francis is a three bedroom semi detached home comprising on the ground floor, entrance hall, store cupboard, cloakroom, lounge, kitchen/dining room; the first floor includes 3 bedrooms, family bathroom and store cupboard. The property also has 2 off road parking spaces.
Total Rent £647.60 pcm
Ready to Occupy July/August 2026 – AVAILABLE TO RESERVE NOW
* All images/photographs are for illustrative purposes only

The Francis is a three bedroom semi detached home comprising on the ground floor, entrance hall, store cupboard, cloakroom, lounge, kitchen/dining room; the first floor includes 3 bedrooms, family bathroom and store cupboard. The property also has 2 off road parking spaces.
Total Rent £658.53 pcm
Ready to Occupy June/July 2026 – AVAILABLE TO RESERVE NOW
* All images/photographs are for illustrative purposes only

A two bedroom end terrace home comprising on the ground floor, entrance hall, cloakroom, lounge, kitchen/dining room; the first floor includes 2 double bedrooms, family bathroom and store cupboard. The property also has 2 off road parking spaces.
Total Rent £450.41 pcm
READY TO OCCUPY
Plot 48 – EPC Plot 50 – EPC Plot 51 EPC Plot 53 EPC
* All images/photographs are for illustrative purposes only

A two bedroom end terrace home comprising on the ground floor, entrance hall, cloakroom, lounge, kitchen/dining room; the first floor includes 2 double bedrooms, family bathroom and store cupboard. The property also has 2 off road parking spaces.
Total Rent £448.26 pcm
Ready to Occupy July/August 2026 – AVAILABLE TO RESERVE NOW
* All images/photographs are for illustrative purposes only

A two bedroom end terrace home comprising on the ground floor, entrance hall, cloakroom, lounge, kitchen/dining room; the first floor includes 2 double bedrooms, family bathroom and store cupboard. The property also has 2 off road parking spaces.
Total Rent £450.41 pcm
READY TO OCCUPY
* All images/photographs are for illustrative purposes only

A two bedroom end terrace home comprising on the ground floor, entrance hall, cloakroom, lounge, kitchen/dining room; the first floor includes 2 double bedrooms, family bathroom and store cupboard. The property also has 2 off road parking spaces.
Total Rent £455.06 pcm
Ready to Occupy April/May 2026 – AVAILABLE TO RESERVE NOW
* All images/photographs are for illustrative purposes only

A two bedroom mid terrace home comprising on the ground floor, entrance hall, cloakroom, lounge, kitchen/dining room; the first floor includes 2 double bedrooms, family bathroom and store cupboard. The property also has 2 off road parking spaces.
Total Rent £451.62 pcm
Ready to Occupy April/May 2026 – AVAILABLE TO RESERVE NOW
* All images/photographs are for illustrative purposes only

A two bedroom mid terrace home comprising on the ground floor, entrance hall, cloakroom, lounge, kitchen/dining room; the first floor includes 2 double bedrooms, family bathroom and store cupboard. The property also has 2 off road parking spaces.
Total Rent £444.82 pcm
Ready to Occupy July/August 2026 – AVAILABLE TO RESERVE NOW
* All images/photographs are for illustrative purposes only

The Audley is a three bedroom semi detached home comprising on the ground floor, entrance hall, store cupboard, cloakroom, lounge, kitchen/dining room; the first floor includes 3 bedrooms, family bathroom and store cupboard. The property also has 2 off road parking spaces.
Total Rent £601.16 pcm
READY TO OCCUPY
* All images/photographs are for illustrative purposes only (Photos show Plot 195)

The Audley is a three bedroom semi detached home comprising on the ground floor, entrance hall, store cupboard, cloakroom, lounge, kitchen/dining room; the first floor includes 3 bedrooms, family bathroom and store cupboard. The property also has 2 off road parking spaces.
Total Rent £606.16 pcm
Ready to Occupy June/July 2026 – AVAILABLE TO RESERVE NOW
* All images/photographs are for illustrative purposes only

The Asher is a three bedroom semi detached home with a driveway. The property comprises on the ground floor, entrance hall, store cupboard/s, cloakroom, lounge, kitchen/dining room; the first floor includes 3 bedrooms, family bathroom and store cupboard/s.
Total Rent £598.30 pcm
Ready to Occupy July/August 2026 – AVAILABLE TO RESERVE NOW
* All images/photographs are for illustrative purposes only

The Asher is a three bedroom semi detached home comprising on the ground floor, entrance hall, store cupboard/s, cloakroom, lounge, kitchen/dining room; the first floor includes 3 bedrooms, family bathroom and store cupboard/s. The property also has 2 parking spaces.
Total Rent £592.76 pcm
Ready to Occupy July/August 2026 – AVAILABLE TO RESERVE NOW
* All images/photographs are for illustrative purposes only

The Kirk is a two bedroom semi detached home. The property comprises on the ground floor, entrance hall, cloakroom, lounge, kitchen/dining room; the first floor includes 2 bedrooms, family bathroom and store cupboard. The property has 2 parking spaces.
Total Rent £458.25 pcm
Ready to Occupy July/August 2026 – AVAILABLE TO RESERVE NOW
* All images/photographs are for illustrative purposes only

The Francis is a three bedroom semi detached home. The property comprises on the ground floor, entrance hall, store cupboard/s, cloakroom, lounge, kitchen/dining room; the first floor includes 3 bedrooms, family bathroom and store cupboard. The property has 2 parking spaces.
Total Rent £568.54 pcm
Ready to Occupy June/July 2026 – AVAILABLE TO RESERVE NOW
* All images/photographs are for illustrative purposes only

The Francis is a three bedroom semi detached home. The property comprises on the ground floor, entrance hall, store cupboard/s, cloakroom, lounge, kitchen/dining room; the first floor includes 3 bedrooms, family bathroom and store cupboard. The property has 2 parking spaces.
Total Rent £647.60 pcm
Ready to Occupy Summer 2026 – AVAILABLE TO RESERVE NOW
* All images/photographs are for illustrative purposes only

The Francis is a three bedroom mid terrace home with 2 parking spaces. The property comprises on the ground floor, entrance hall, store cupboard, cloakroom, lounge, kitchen/dining room; the first floor includes 3 bedrooms, family bathroom and store cupboard.
Total Rent £551.82 pcm
READY TO OCCUPY
* All images/photographs are for illustrative purposes only

The Asher is a three bedroom semi detached home with a driveway. The property comprises on the ground floor, entrance hall, store cupboard/s, cloakroom, lounge, kitchen/dining room; the first floor includes 3 bedrooms, family bathroom and store cupboard/s.
Total Rent £589.04 pcm
READY TO OCCUPY
* All images/photographs are for illustrative purposes only

The Asher is a three bedroom mid terrace home comprising on the ground floor, entrance hall, store cupboard/s, cloakroom, lounge, kitchen/dining room; the first floor includes 3 bedrooms, family bathroom and store cupboard/s. The property also has 2 off road parking spaces.
Plots 41 & 44 Total Rent £586.26 pcm
Plot 64 Total Rent £581.62 pcm
READY TO OCCUPY
* All images/photographs are for illustrative purposes only

The Asher is a three bedroom end terrace home comprising on the ground floor, entrance hall, store cupboard/s, cloakroom, lounge, kitchen/dining room; the first floor includes 3 bedrooms, family bathroom and store cupboard/s. The property also has 2 off road parking spaces.
Total Rent £590.01 pcm
READY TO OCCUPY
* All images/photographs are for illustrative purposes only

The Audley is a three bedroom semi detached home comprising on the ground floor, entrance hall, store cupboard, cloakroom, lounge, kitchen/dining room; the first floor includes 3 bedrooms, family bathroom and store cupboard. The property also has 2 off road parking spaces.
Total Rent £596.52 pcm
READY TO OCCUPY
* All images/photographs are for illustrative purposes only

A two bedroom mid terrace home comprising on the ground floor, entrance hall, cloakroom, lounge, kitchen/dining room; the first floor includes 2 double bedrooms, family bathroom and store cupboard. The property also has 2 off road parking spaces.
Plot 49 Total Rent £495.91 pcm
Plot 52 Total Rent £446.97 pcm
Plot 61 Total Rent £442.31 pcm
READY TO OCCUPY
Plot 49 – EPC Plot 52 EPC Plot 61 EPC
* All images/photographs are for illustrative purposes only

A two bedroom end terrace home comprising on the ground floor, entrance hall, cloakroom, lounge, kitchen/dining room; the first floor includes 2 double bedrooms, family bathroom and store cupboard. The property also has 2 off road parking spaces.
Total Rent £445.75 pcm
READY TO OCCUPY
* All images/photographs are for illustrative purposes only

A two bedroom semi detached home comprising on the ground floor, entrance hall, cloakroom, lounge, kitchen/dining room; the first floor includes 2 double bedrooms, family bathroom and store cupboard. The property also has 2 off road parking spaces.
Total Rent £449.19 pcm
READY TO OCCUPY
* All images/photographs are for illustrative purposes only
One of our team will be in touch