Find your place to call home Find your home
Hotspur Gardens, Upper Lighthorne, Leamington Spa, Warwickshire, CV33 8BP
3 Bedroom
Semi-detached
From £86,250
25% Shared Ownership
Plot 79
Available
Plot 80
Available
Plot 81
Available
Plot 82
Available

The Francis is a three bedroom semi detached home.  The property comprises on the ground floor, entrance hall, store cupboard/s, cloakroom, lounge, kitchen/dining room; the first floor includes 3 bedrooms, family bathroom and store cupboard. The property has 2 parking spaces.

Total Rent £647.60 pcm

Ready to Occupy March 2026 – AVAILABLE TO RESERVE NOW

*  All images/photographs are for illustrative purposes only

Photos

Francis Front Cgi Illustration Only
P79 Bamford Boundary 19092025
P80 Bamford Boundary 19092025
P81 Bamford Boundary 19092025
P82 Bamford Boundary 19092025
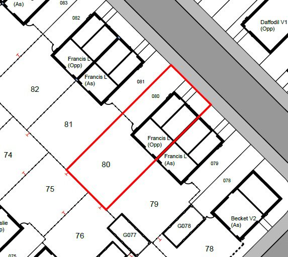
Plots 79 To 82
Bamford Park Zoomed In Location
Bamford Park Zoomed Out Location

For further details please contact our sales team on 08450 132713 or email sales@citizenhousing.org.uk

To apply for a shared ownership home, please complete our online application form and return to sales@citizenhousing.org.uk

Please note there is an 80% staircasing restriction on these homes.

 

Floor plan

Location

Bamford Park, Upper, UK