Find your place to call home Find your home
off Astley Lane, Bedworth, Warwickshire, CV12 0NG
2 Bedroom
Semi-detached
From £96,500
40% Shared Ownership
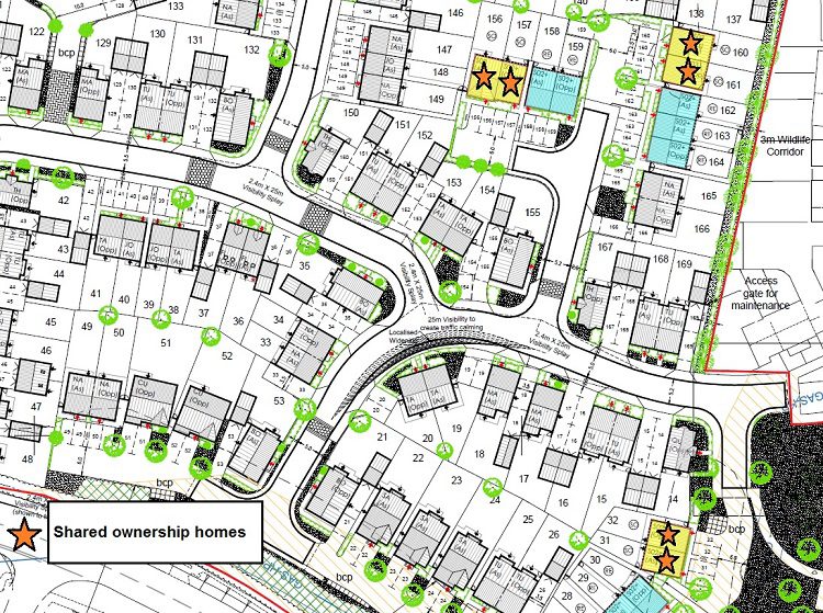
Plot 157
Available

Two bedroom semi detached home comprising on the ground floor, entrance hall, cloakroom, lounge, kitchen/dining room, store cupboard; the first floor includes 2 bedrooms and family bathroom. The property also has 2 off road parking spaces.

Total Rent £368.90 pcm

READY TO OCCUPY

* Images are for illustration purposes only

Photos

P157 Astley Front Elevation 23022024
P157 Astley Rear Garden 23022024
P157 Astley Kitchen 23022024
P157 Astley Gf Wc 23022024
P157 Astley Bathroom 23022024
P157 Astley Boundary 22032024
Site Plan Plots 31,32,156,157,160,161
Zoomed In Location Plan Astley Fields
Zoomed Out Location Plan Astley Flds
The,young,happy,couple,is,moving,into,a,new,house.

For further details please contact our sales team at email sales@citizenhousing.org.uk

To apply for a shared ownership home, please complete our online application form and return to sales@citizenhousing.org.uk

 

Floor plan

Location