Citizen are pleased to offer these shared ownership properties available in Dudley and the surrounding towns for resale
A resale property is a shared ownership property that the current owner bought new from us, or as a resale. These properties fall under the category of part buy/part rent.
If you are interested in purchasing one of our resale homes currently available in Dudley, please complete and return the application form.
Please ensure you state on the application which property you are interested in and return to the sales email address below.
Citizen Application Form – Resale
Email: sales@citizenhousing.org.uk


Before we can arrange viewings for our resale properties, we will need the completed application form. As resale properties are being sold on behalf of the current shared owner, they will conduct the viewings.
Once you have viewed the property, and if you wish to proceed with purchasing, you will need to complete a two-stage financial assessment with our financial assessor, Censeo to confirm your affordability.
Below are the resale properties we currently have available in Dudley:
9 Clover Avenue, Lea Castle, Kidderminster, DY10 3FH
Semi Detached 2 bed house – 40% Share


Resales Dudley
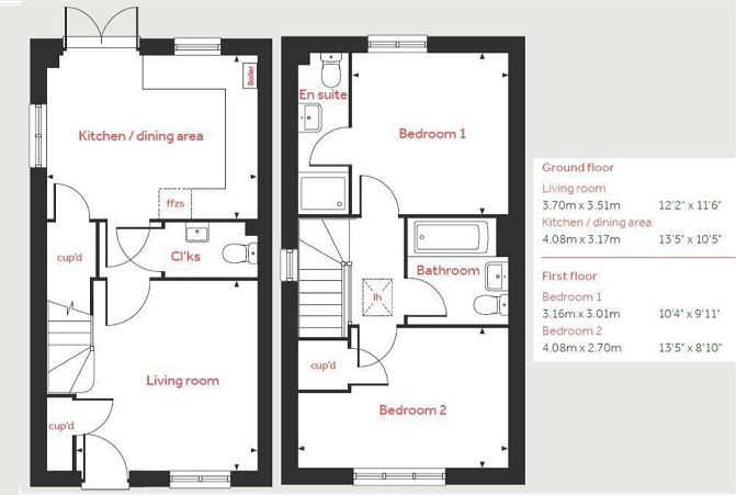
This is a lovely Shared Ownership Semi-Detached two-bedroom house in Kidderminster. With lovely kerb appeal, this property boasts a nice separate lounge which has access to the stairs to the first floor. You walk through to the back of the house to the downstairs WC and the modern kitchen diner with double doors to the lovely rear garden. Upstairs you’ll find a well-appointed family bathroom and two good-sized bedrooms with the main bedroom having an ensuite. This property benefits from multiple storage cupboards, a driveway out the front and a lovely rear garden.
This property is available for a 40% share for £95,400 (full market value £238,500).
Total monthly rent and service charge £423.31 payable to Citizen Housing who will act as the landlord for the remaining 60%.
For more information we are also marketing this property on Zoopla – Clover Avenue, Lea Castle, Kidderminster DY10, 2 bed semi-detached house for sale, £95,400 – Zoopla
One of our team will be in touch