Citizen are pleased to offer these shared ownership properties available in Herefordshire for resale
A resale property is a shared ownership property that the current owner bought new from us, or as a resale. These properties fall under the category of part buy/part rent.
If you are interested in purchasing one of our resale homes currently available in Herefordshire, please complete and return the application form.
Please ensure you state on the application which property you are interested in and return to the sales email address below.
Citizen Application Form – Resale
Email: sales@citizenhousing.org.uk


Before we can arrange viewings for our resale properties, we will need the completed application form. As resale properties are being sold on behalf of the current shared owner, they will conduct the viewings.
Once you have viewed the property and if you wish to proceed with purchasing, you will need to complete a two-stage financial assessment with our financial assessor, Censeo to confirm your affordability.
Below are the resale properties we currently have available in Herefordshire:
3 Ryeland Lane, Kingstone, Herefordshire, HR2 9TS
Semi-Detached 3 bed house – 65% share – £175,500 – Opportunity to staircase ownership
33 Chichester Close, Belmont, Herefordshire, HR2 7YU
End Terrace 3 bed house – 50% Share – £100,000 – Opportunity to staircase ownership


This lovely three-bedroom end terrace house is now available in Belmont, Hereford through Shared Ownership.
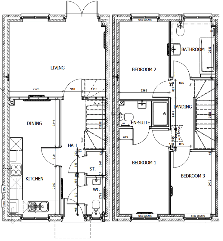
The property has lots of kerb appeal and comprises of a small entrance hallway with the downstairs WC on the left as you walk in and then into the lounge. To the back of the house is the separate dining room with access to the garden and the kitchen with a storage cupboard.
Upstairs you’ll find a well-appointed bathroom and three good-sized bedrooms with the master bedroom having an ensuite shower room. This property benefits from off-street parking and a private rear garden.
Sale Details
Available for £100,000 for a 50% share based on the marketing figure of £200,000.
Monthly Rent – £288.62
Monthly Service Charge – £16.61
Total monthly charge of £305.23 is payable to Citizen Housing who will act as the landlord for the remaining 50%.
This property has the opportunity to staircase ownership and purchase the 100% share, please contact Citizen Housing for more information.
We are also marketing this property on Zoopla – Chichester Close, Belmont HR2, 3 bed end terrace house for sale, £100,000 – Zoopla
Any interested buyers will need to be eligible for the Help to Buy Shared Ownership scheme and they will need to complete a financial assessment with Censeo before they are approved to purchase.

This lovely three-bedroom semi-detached house is now available in Kingstone, Herefordshire through Shared Ownership.
The property comprises of an entrance hallway with a downstairs WC and cloakroom on your right as you walk in and the modern kitchen dining room on the left. The separate living room is to the back of the house with double door access to the private garden.
Upstairs you’ll find a well-appointed bathroom and three good sized bedrooms with the main bedroom having an ensuite shower room. This property benefits from off-street parking and a private rear garden.
Property Details
Available for £175,500 for a 65% share based on the marketing figure of £270,000.
Monthly Rent – £241.28
Monthly Service Charge – £31.64
Total monthly charge of £272.92 is payable to Citizen Housing who will act as the landlord for the remaining 35%.
We are also marketing this property on Zoopla – Ryeland Lane, Kingstone, Hereford – 65% Share HR2, 3 bed semi-detached house for sale, £175,500 – Zoopla
Any interested buyers will need to be eligible for the Help to Buy Shared Ownership scheme.

This lovely three-bedroom semi-detached house is now available in Kingstone, Hereford through Shared Ownership.
The property boasts a cozy entrance hall, leading onto a downstairs WC and storage cupboard on the right as you walk in and the modern kitchen and dining room on the left. To the back of the house is the separate lounge that leads to the garden.
Upstairs you’ll find a well-appointed bathroom and three good sized bedrooms, with the main bedroom having a ensuite shower room. This property benefits from a driveway to the side and a lovely rear garden.
Property Details
Available for £91,000 for a 35% share based on the marketing figure of £260,000.
Monthly Rent – £448.06
Monthly Service Charge – £30.42
Total monthly charge of £478.48 is payable to Citizen Housing who will act as the landlord for the remaining 65%.
We are also marketing this property on Zoopla – Romney Way, Kingstone, Hereford HR2, 3 bed semi-detached house for sale, £91,000 – Zoopla
Any interested buyers will need to be eligible for the Help to Buy Shared Ownership scheme.
One of our team will be in touch